Onder bod: Albert Cuypstraat 276G, 1073 BR Amsterdam
Onder bod: Albert Cuypstraat 276G, 1073 BR Amsterdam
Onder bod: Albert Cuypstraat 276G, 1073 BR Amsterdam
Onder bod A

Albert Cuypstraat 276G, 1073 BR Amsterdam

€ 395.000,- k.k.

Beschrijving Albert Cuypstraat 276G

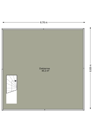
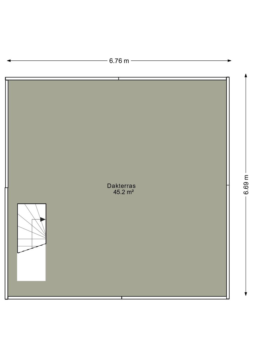
ALBERT CUYPSTRAAT 276-G - Ontdek dit volledig gerenoveerde, turn key appartement op eigen grond met energielabel A. De woning is tot in detail vernieuwd en beschikt over een elektrisch dakraam dat zorgt voor veel natuurlijk licht. Het gezamenlijke dakterras biedt uitzicht over de buurt. Met de Al...

Kenmerken

Type object Appartement, bovenwoning
Bouwperiode 1891
Status Onder bod
Aangeboden sinds Dinsdag 14 oktober 2025

Albert Cuypstraat 276G bekijken?

Wij plannen graag een bezichtiging met je in. Tijdens de bezichtiging vertelt een makelaar alles wat je wilt weten.

Sluiten

Recent bekeken