Beschrijving

ALBERT CUYPSTRAAT 276-G - Ontdek dit volledig gerenoveerde, turn key appartement op eigen grond met energielabel A. De woning is tot in detail vernieuwd en beschikt over een elektrisch dakraam dat zorgt voor veel natuurlijk licht. Het gezamenlijke dakterras biedt uitzicht over de buurt. Met de Albert Cuypstraat, de Van Woustraat en de Hemonystraat om de hoek woont u midden in een van de meest geliefde buurten van de stad!

Indeling

Op de vierde verdieping aan de voorzijde bevindt zich dit appartement. In de hal vindt u links de toegang tot het aparte toilet en de badkamer met inloopdouche en wastafelmeubel. Rechtdoor ligt een apart washok. Vanuit de hal stapt u door een prachtige schuifdeur de lichte woonkamer binnen met een volledig nieuwe open keuken, die uitzicht biedt over de levendige Albert Cuypmarkt. Naast de woonkamer bevindt zich de slaapkamer.

Locatie & Bereikbaarheid
Midden in De Pijp, op een steenworp afstand van de Van Woustraat en de Albert Cuypmarkt. Het Sarphatipark en talloze gezellige cafés liggen om de hoek. Tram 3 en 12 stoppen vlakbij, de Noord/Zuidlijn brengt u in enkele minuten naar CS en de Ring A10 is snel bereikbaar via de Ceintuurbaan.

Bijzonderheden

VvE
Professioneel beheerde VvE met meerjarenonderhoudsplan.
- Bijdrage: € 96,60 per maand
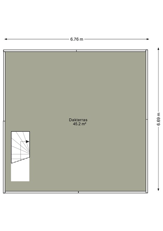
- Gezamenlijk dakterras

UITGANGSPUNTEN
- Vraagprijs: € 395.000 k.k.
- Woonoppervlakte: ca. 42 m² (NEN 2580)
- Energielabel: A
- Eigen grond
- Gemeenschappelijk dakterras 
- Nieuw elektrisch  dakraam 
- Clausules: niet-zelfbewoningsclausule & as-is-where-is
- Notaris: Hartman LMH N.V.
- Oplevering: in overleg

Kenmerken