Beschrijving
Wonen in een gaaf turn key dubbel benedenhuis met tuin in het Oude Noorden van Rotterdam?
“Het Oude Noorden” heeft zich ontwikkeld tot een wijk met leuke hotspots en gezellige straten zoals Zwaanshals en Zaagmolenkade. Hier is een leuk en zeer divers aanbod van lokale winkels en eetgelegenheden en zelfs een eigen bierbrouwerij. In de buurt zijn diverse gezellige pleinen waar vaak iets te doen is. Zo is er op het Noordplein op zaterdag de Rotterdamse Oogstmarkt.
De woning is volledig gerenoveerd in 2022. Dit betekent dat het leidingwerk, elektra, isolatie en kozijnen volledig vervangen zijn. De woning is voorzien van strak gestucte wanden, mooie laminaat vloer met ondervloer en hoge plinten. De keuken is voorzien van alle benodigde apparatuur.
De dagelijkse boodschappen doe je op loopafstand en het centrum van Rotterdam ligt slechts op 10 minuten fietsen. Reist u met het openbaar vervoer? Station Rotterdam Noord, de bus of tram en het Centraal Station zijn allemaal op loop- of fietsafstand. Ook de aansluitingen op de ring rond Rotterdam (A12 en A20) zijn goed en snel bereikbaar. In het nabijgelegen Kralingse Bos zijn er goede sport- en recreatiemogelijkheden.
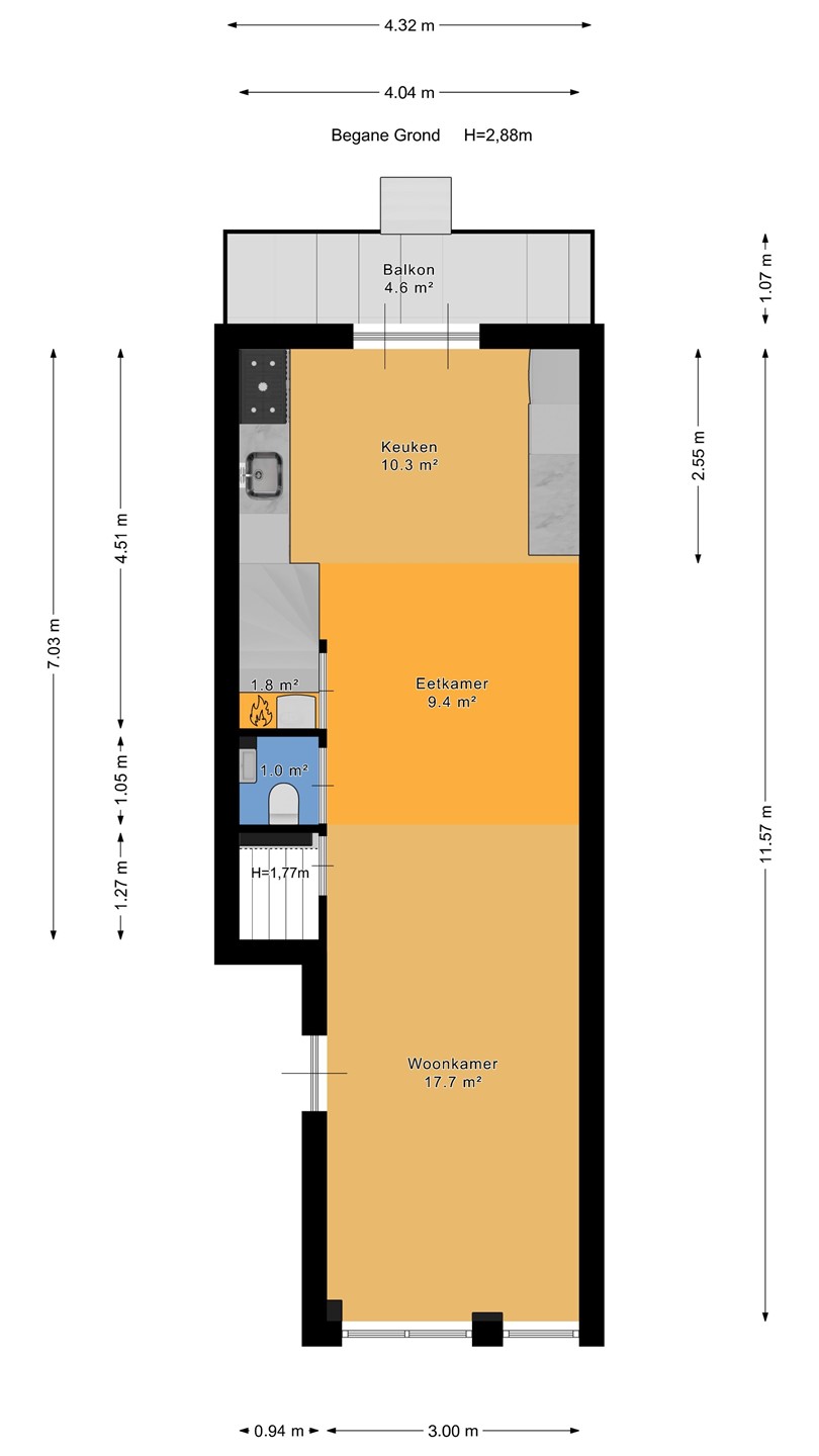
Indeling
Begane grond: entree naar voordeur
Begane grond:
Binnenkomst in de heerlijk ruime woonkamer met open keuken en openslaande deuren naar de tuin/patio. Gelijk valt het hoge plafond op. Dit geeft een heerlijk ruimtelijk gevoel. Aan de voorzijde van de woning bevinden zich grote raampartijen die voorzien zijn van kunststofkozijnen en HR ++ glas. Via de woonkamer is er een open trap naar de bovenverdieping. Verder bevindt zich op de begane grond de wasruimte en toilet.
1e etage:
Op de 1 etage bevinden zich 3 slaapkamers. De masterbedroom met badkamer ensuite en deur naar het balkon. Aan de voorzijde van deze verdieping bevinden zich twee gelijkwaardige slaapkamers. In het midden van de verdieping is er een tweede badkamer met inloopdouche, badmeubel en radiator. Tevens bevindt zich een apart toilet op deze verdieping.
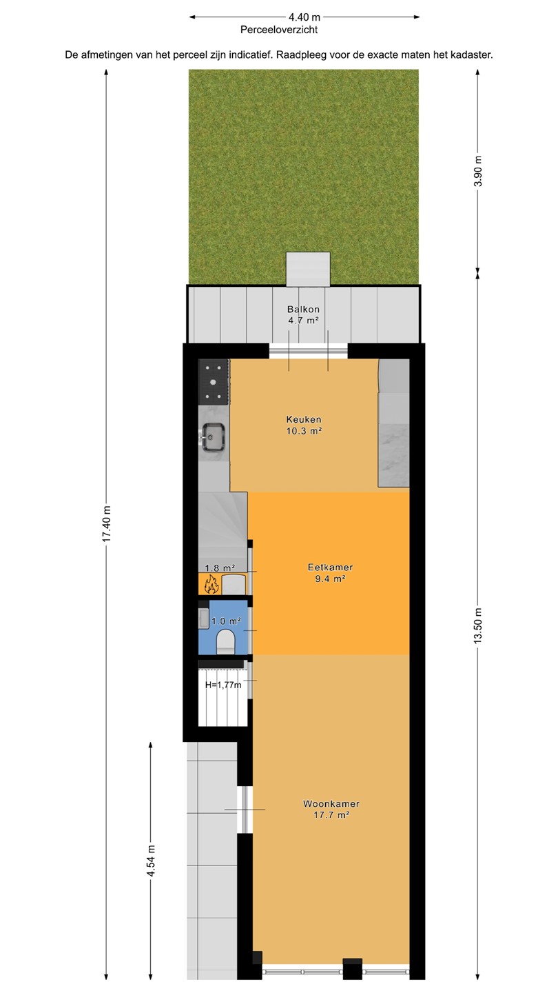
We verwijzen u graag naar de plattegrond voor de exacte maatvoering.
Bijzonderheden
- Woonoppervlakte 84m2
- Bouwjaar 1896
- Volledig geïsoleerd
- Energielabel A
- tuin
- 3 slaapkamers
- Gerenoveerd in 2022
- 1/2e aandeel
- Maandelijkse VvE bijdrage €235,63
- Fundering hersteld
- Projectnotaris Rosenberg Polak Den Haag
- Oplevering in overleg, kan snel
- Niet-bewonersclausule, asbestclausule, ouderdomsclausule en as is, where is van toepassing
*Aan deze tekst en plattegrond kan geen rechten worden ontleend*