Beschrijving
Nette 4-kamer woning aan de Volkerakstraat 21 beschikbaar met drie slaapkamers en een energielabel C.
Het appartement is gelegen in de populaire wijk 'Bezuidenhout'. Snel met het openbaar vervoer naar de overige grote steden? Treinstations Laan van NOI en Den Haag Centraal, trams, bussen en de Randstadrail zijn op loopafstand. Liever met de auto? Binnen enkele minuten rij je op de A4, A12 of A13! Winkels voor je dagelijkse boodschappen vindt je in de gezellige Theresiastraat en shoppen kun je in de binnenstad van Den Haag. Met het Haagse Bos in de buurt ben je ook verzekerd van een mooi groene omgeving om heerlijk te ontspannen.
Indeling
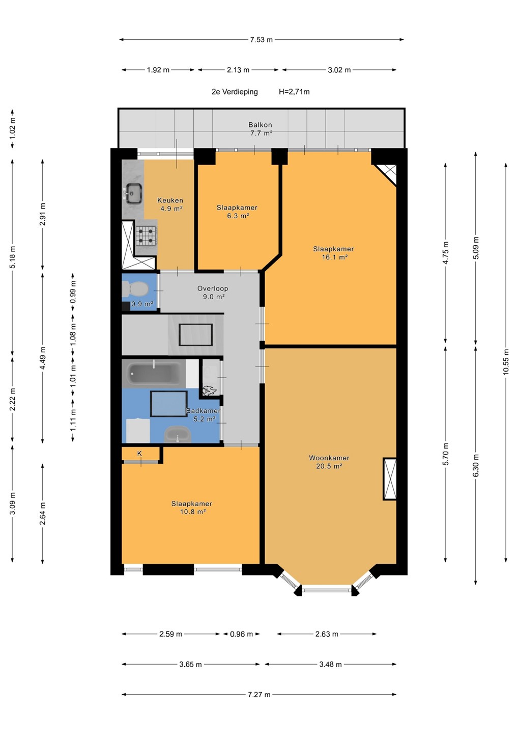
Indeling: Entree op straatniveau met opgang naar portiek, binnenkomst hal met trap naar de tweede etage. De keuken is voorzien van diverse inbouwapparatuur zoals een inductiekookplaat, oven, koelkast, vaatwasser en afzuigkap. Verder beschikt de woning over een woonkamer en drie slaapkamers. De badkamer beschikt over een bad met douche, wastafel + spiegel, handdoekradiator en aansluiting voor de wasmachine. In de hal bevindt zich een apart toilet. Het balkon is gelegen aan de achterkant.
Voor de maten verwijzen wij u graag door naar de plattegrond.
Bijzonderheden
- Woonoppervlakte 82m²
- Erfpacht van toepassing maar is eeuwigdurend afgekocht.
- Bouwjaar 1930
- VvE Maandelijkse bijdrage € 110,00
- Verwarming middels centrale verwarming
- Energielabel C
- 1/3e aandeel
- Oplevering in overleg
- Projectnotaris Rosenberg-Polak
- Oplevering in overleg, kan snel
- Niet-bewonersclausule, asbestclausule, ouderdomsclausule en as is, where is clausule van toepassing
*Aan deze tekst en plattegrond kan geen rechten worden ontleend*