Beschrijving
Gezellig en knus 3-kamer appartement aan de Loosdrechtsestraat 22 te Den Haag. De woning is instapklaar, heeft 2 slaapkamers en een zonnig balkon.
Aantrekkelijk en centraal gelegen in de wijk Rustenburg. Het openbare vervoer bevind zich op loopafstand; tram 4 richting de Uithof en richting Zoetermeer brengt je naar de NS-stations Den Haag CS en HS. Binnen korte tijd ben je in de bruisende binnenstad van Den Haag.
De gezellige winkelstraat Dierenselaan met supermarkten, bakkerijen, slagers, opticien, warenhuis, fietsspeciaalzaak en talloze restaurants en afhaalzaken ligt op loopafstand. Het populaire Zuiderpark, Park Overvoorde en het Haga ziekenhuis zijn ook op enkele minuten fietsen bereikbaar. Natuurliefhebber? Het strand, de duinen, de boulevard en recreatieparken zijn in korte tijd bereikbaar.
Indeling
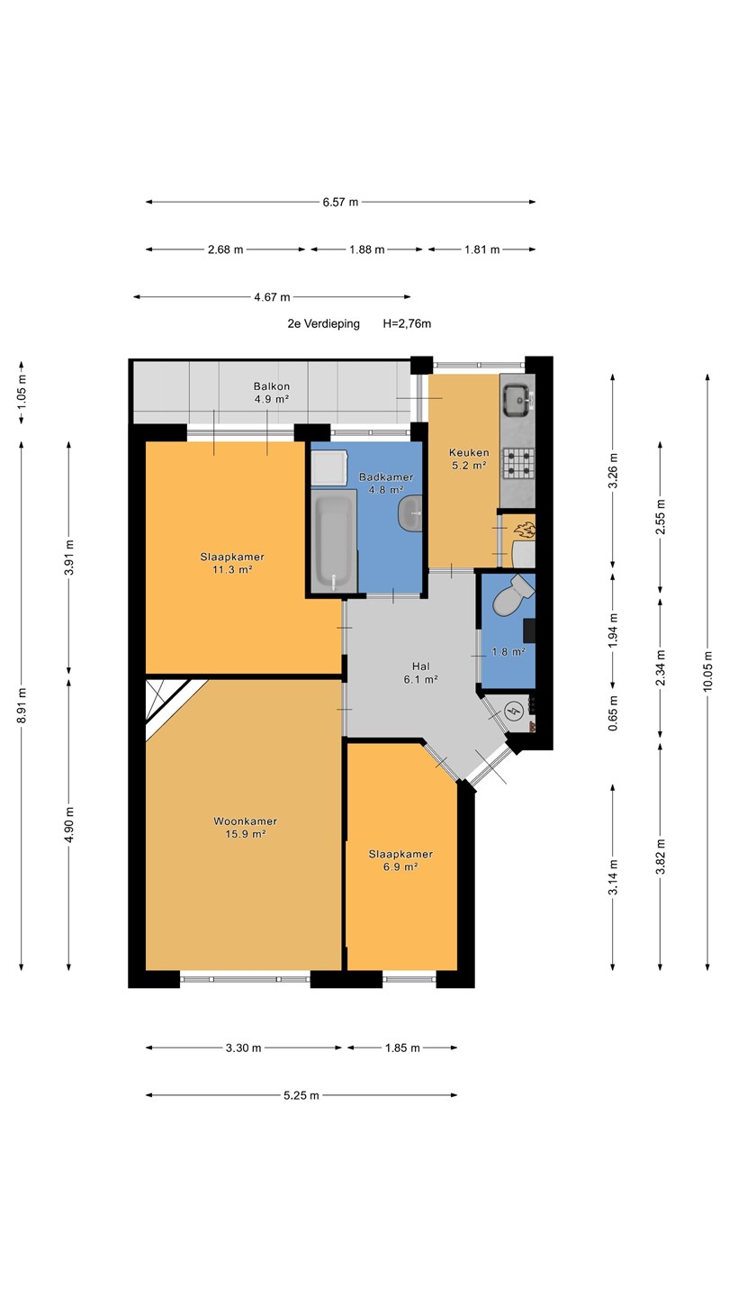
Voor de maatvoering verwijzen wij u naar de plattegrond.
Bijzonderheden
- Woonoppervlakte 56m²
- Gelegen op erfpachtgrond. Eeuwigdurend uitgegeven en afgekocht.
- Bouwjaar 1927
- Actieve VvE Maandelijkse bijdrage € 155,00
- Verwarming middels centrale verwarming
- Energielabel E
- Oplevering in overleg
- Projectnotaris Rosenberg-Polak
- Oplevering in overleg, kan snel
- Niet-bewonersclausule, asbestclausule, ouderdomsclausule en as is, where is clausule van toepassing
*Aan deze tekst en plattegrond kan geen rechten worden ontleend*