Beschrijving
NIET VOOR STUDENTEN & NIET GESCHIKT VOOR MEER DAN TWEE WONINGDELERS!
Geheel gerenoveerd luxe 4-kamer appartement gelegen op de eerste en tweede verdieping van 106m2 woonoppervlakte in Kralingen!
Groen en ontspannen, met de Kralingse Plas om de hoek – perfect voor een ochtendwandeling, picknick in het weekend of een middagje slootjespringen met de kids. Tegelijkertijd zit je zó in het centrum van Rotterdam: pak de fiets of de tram en je staat binnen tien minuten op de Meent, in De Markthal of op het terras van je favoriete barista.
De sfeer in de wijk is relaxed en vriendelijk. Veel jonge gezinnen, starters en werkenden kiezen juist voor Kralingen vanwege die levendige dynamiek. Je vindt er hippe horeca, goede scholen, handige winkels en gezellige speeltuinen. En het mooie is: al die voorzieningen zijn vlakbij, zonder dat je woonplezier én rust hoeft in te leveren. Het voelt hier altijd een beetje als vakantie.
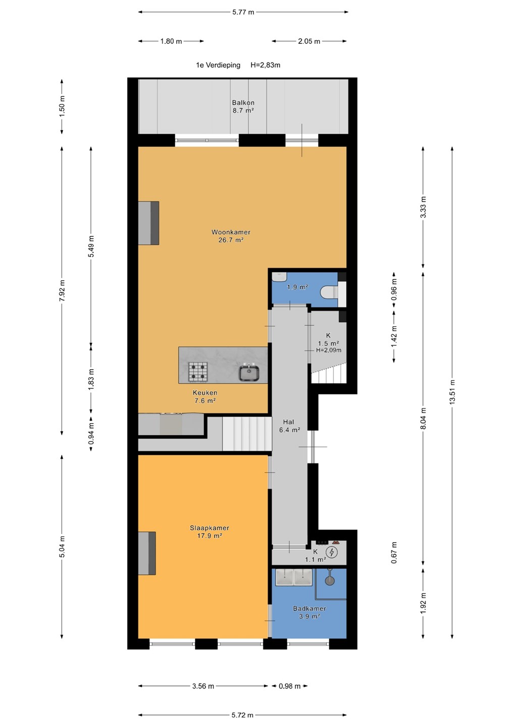
Indeling
Eerste etage:
Opgang naar eerste verdieping. Entree woning in de hal. Op de eerste etage bevindt zich de woonkamer met openkeuken voorzien van alle denkbare moderne inbouwapparatuur, koelkast, vriezer, vaatwasser, inductiekookplaat, kokend water kraan van Quooker en een wijnkoeler. Via de woonkamer toegang tot het achterbalkon. Verder bevindt de master bedroom met eigen badkamer voorzien van inloopdouche met dubbele wastafel en spiegel zich aan de voorzijde van het appartement. In de hal separaat het toilet met fontein.
Tweede etage:
Trap naar de tweede etage met overloop. Hier bevinden zich de laatste 2 slaapkamers. Tweede badkamer met inloopdouche, ligbad en dubbele wastafel. Ook hier separaat het toilet in de hal.
Zie graag de plattegronden voor de afmetingen.
Bijzonderheden
• De huurprijs is € 2.950,- excl. gas/water/licht en incl. € 5,00 stofferingskosten.
• Huisdieren in overleg
• Minimale huurperiode: 12 maanden
• Borgsom: 2 maanden huur
•Recent gerenoveerd
• Woning is niet geschikt voor studenten en in geval van woningdelers maximaal twee personen.
Kenmerken:
• Oppervlakte: ca: 106 m2
• Bouwjaar: 1900
• EPA: Energielabel A
• Installaties: CV ketel met vloerverwarming
Huurvoorwaarden:
Dit is een huurwoning in de vrije sector waarvoor men geen huurtoeslag kan aanvragen. Daarom hanteren wij de volgende inkomenseisen:
Alleenverdiener: u dient 3x de huurprijs aan bruto maandinkomen te ontvangen. Tweeverdieners: het tweede bruto maandinkomen mag voor 75% meegerekend worden bij het eerste bruto inkomen.
Interesse?
Stuur ons een mailtje met een korte introductie (aantal personen in het huishouden en het inkomen) waarna wij u kunnen uitnodigen voor de bezichtiging.
Gezien de vele aantal aanmeldingen kunnen wij helaas niet iedereen uitnodigen.
* Aan deze tekst en plattegrond kunnen geen rechten worden ontleend.*