Beschrijving
        
Op zoek naar een gerenoveerd benedenhuis met tuin? Wij bieden een dubbele benedenwoning met tuin aan van circa 107m2. De woning is in 2019 volledig gerenoveerd en geïsoleerd. De woning is gelegen in de gewilde wijk Oud-Chairlos. De woning beschikt over een ruime woonkamer, 2/3 slaapkamers, nette keuken en badkamer. Riante tuin gelegen op het zuiden met achterom.
Omgeving:
Oud-Charlois biedt ieder wat wils: oud, jong, sportief, creatief, alles is te vinden in deze sfeervolle wijk. De kracht van Oud-Charlois zit in de karaktervolle en groene omgeving én de bevlogen bewoners. Meer dan 150 creatieve ondernemers en verschillende actieve bewonersgroepen maken de wijk levendig. Ook het onderwijsaanbod is groot: de wijk telt 4 basisscholen en 5 middelbare scholen. Voor wie het oude Rotterdam wil ervaren, is de dorpskern met authentieke huizen en straatjes een feestje om te bivakkeren. Ook de Rotterdamse binnenstad is nabij gelegen. Met de auto bent u doormiddel van diverse uitvalswegen zo op de snelweg en ook het openbaar vervoer is nabij gelegen.
         
     
    
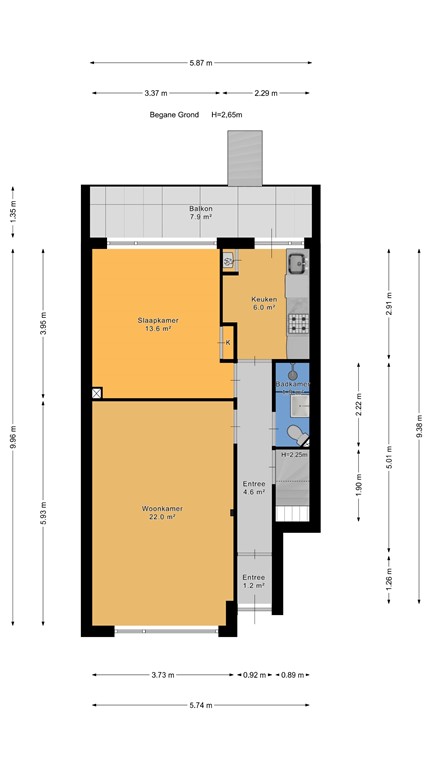
            Indeling
        
Voor de exacte maatvoering verwijzen wij u naar de plattegrond.
         
     
    
            Bijzonderheden
        
- Woonoppervlakte 107,8m2
- Tuin op het zuiden
- Bouwjaar 1939
- Eigen grond
- Energielabel B, geldig tot 2029
- VvE recent opgericht.
- 1/2e aandeel. Maandelijkse bijdrage € 136,15
- Projectnotaris Rosenberg-Polak
- Oplevering in overleg, kan snel
- Niet-bewonersclausule van toepassing
- Asbestclausule van toepassing
- Ouderdomsclausule van toepassing
Aan deze tekst kunnen geen rechten worden ontleend.
         
     
        Plattegronden
            
                
                
                    verboomstraat_1_begane_grond_first_design_20250814_04a0f0.jpg
                
             
            
                
                
                    verboomstraat_1_berging_first_design_20250814_19acd2.jpg
                
             
            
                
                
                    verboomstraat_1_perceeloverzich_first_design_20250814_e6cfe8.jpg
                
             
            
                
                
                    verboomstraat_1_souterrain_first_design_20250814_483dd4.jpg