Beschrijving
        
Turn key 4 kamer dubbel bovenhuis in het kleiwegkwartier!
In de gewilde wijk kleiwegkwartier vind je in dit sfeervolle straatje een gerenoveerd dubbel bovenhuis. De woning is in 2022 volledig gerenoveerd en geïsoleerd. Mooie en ruime woonkamer met half open keuken en openslaande deuren naar het balkon. De keuken is modern en van alle gemakken voorzien! De woning is voorzien van 3 goed formaat slaapkamers, nieuwe en strakke badkamer met ruime inloopdouche, toilet, radiator en wasmeubel. Energielabel B.
Dit leuke bovenhuis is zeer gunstig gelegen t.o.v. de winkels aan de Kleiweg. Bovendien is het stadscentrum binnen 10 fietsminuten bereikbaar. Ook de recreatievoorzieningen van de Bergse Plassen en de Rotte zijn zeer nabij. Er is divers openbaar vervoer (bus, tram, metro (randstad Rail) en trein (NS-station Noord)) op loopafstand. Voorts is het zeer gunstig gelegen t.o.v. vele sportverenigingen (zwembad, tennis, voetbal, hockey, cricket, honkbal, etc.), scholen en kinderdagverblijven. De uitvalswegen A13 en A20 zijn uitstekend bereikbaar.
         
     
    
            Indeling
        
Indeling:
Begane grond:
Eigen entree met trapopgang naar de eerste verdieping.
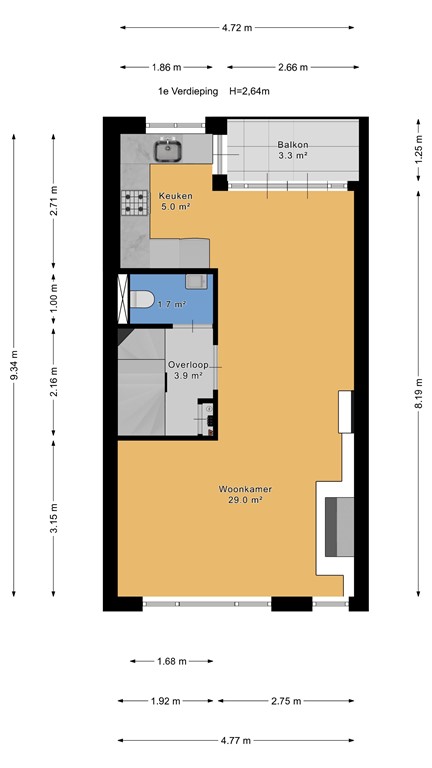
Eerste verdieping:
Overloop met meterkast en toilet. Ruime en lichte woonkamer met half open keuken die voorzien is van een koelvries combinatie, vaatwasser, inductiekookplaat, afzuigkap en combi oven/magnetron.
Tweede verdieping:
Overloop met trapopgang, ruime en strakke badkamer met inloopdouche, wastafel en 2e toilet. Twee goede slaapkamers, waarvan 1 aan de voorzijde en 1 aan achterzijde. Deze etage is zowel aan voor- als achterzijde voorzien van een dakkapel. 
Zolder:
Een vaste trap naar de 3e etage. Hier bevinden zich de installaties en de derde slaapkamer.
         
     
    
            Bijzonderheden
        
- Woonoppervlakte circa 96.8m2
- Bouwjaar 1933
- Volledig  gerenoveerd en geïsoleerd in 2022
- Energielabel B
- 3 ruime slaapkamers
- Actieve VvE
- 16/95e aandeel
- Maandelijkse VvE bijdrage €100,00
- Projectnotaris Rosenberg-Polak
- Oplevering in overleg, kan snel
- Niet-bewonersclausule van toepassing
- Ouderdomsclausule
Aan deze tekst kunnen geen rechten worden ontleend.
         
     
        Plattegronden
            
                
                
                    duizendschoonst_begane_grond_first_design_20250902_35a2c5.jpg
                
             
            
                
                
                    duizendschoonst_1e_verdieping_first_design_20250902_001eb1.jpg
                
             
            
                
                
                    duizendschoonst_2e_verdieping_first_design_20250902_cc5165.jpg
                
             
            
                
                
                    duizendschoonst_3e_verdieping_first_design_20250902_bb07f5.jpg