Onder bod: Kerklaan 121, 2282 CH Rijswijk
Onder bod: Kerklaan 121, 2282 CH Rijswijk
Onder bod: Kerklaan 121, 2282 CH Rijswijk
Onder bod A

Kerklaan 121, 2282 CH Rijswijk

€ 325.000,- k.k.

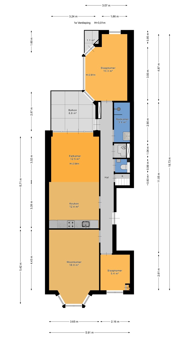
Beschrijving Kerklaan 121

Charmant en ruim 4 kamer appartement (80 m2) gelegen op de eerste etage in de mooie wijk Oud Rijswijk. De woning is intern gerenoveerd in 2019 en volledig geïsoleerd. Energielabel A. De woning beschikt over een mooie lichte woonkamer met open keuken en glas in lood details. Openslaande deuren naa...

Kenmerken

Type object Appartement, tussenverdieping
Bouwperiode 1920
Status Onder bod
Aangeboden sinds Vrijdag 10 oktober 2025

Kerklaan 121 bekijken?

Wij plannen graag een bezichtiging met je in. Tijdens de bezichtiging vertelt een makelaar alles wat je wilt weten.

Sluiten

Recent bekeken