Beschrijving
        
Modern en Gezellig Appartement in Te Werve, Rijswijk
Een unieke kans voor starters om dit prachtige appartement te betrekken, gelegen aan de Dr H. Colijnlaan 15 in de populaire wijk Te Werve, Rijswijk. Dit gezellige appartement op de 4e etage van een portiekflat is volledig gerenoveerd in 2019 en biedt een mix van comfort en moderne stijl. De woning is volledig geïsoleerd, een ruime lichte woonkamer, twee slaapkamers, ingerichte keuken en een nette badkamer.
Ideale Ligging
De Dr H. Colijnlaan staat bekend om de gunstige ligging met diverse voorzieningen binnen handbereik. Op loopafstand vind je winkels, scholen, en openbaar vervoer. Tevens ben je zo in het gezellige centrum van Rijswijk of in Den Haag.
         
     
    
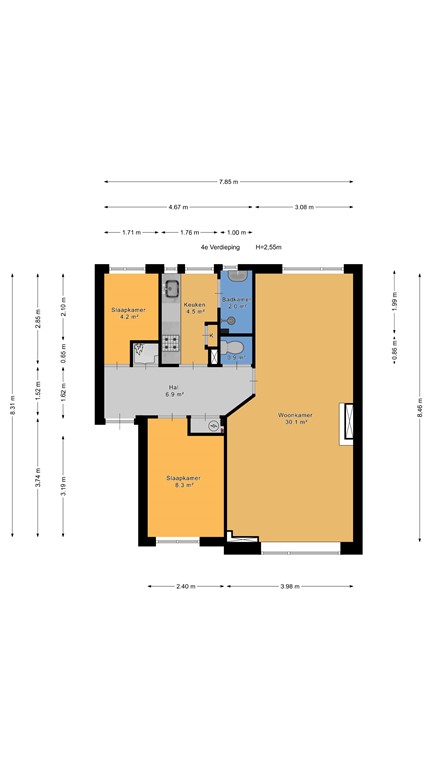
            Indeling
        
Bij binnenkomst kom je binnen in een ruime hal met toegang tot alle vetrekken. Aan de voorzijde van de woning bevindt zich de lichte woonkamer en de masterbedroom. Aan de achterzijde van de woning bevinden zich de ingerichte keuken, badkamer en 2e slaapkamer. Met twee slaapkamers is er voldoende ruimte voor een stel of klein gezin. De aanwezigheid van een balkon biedt de mogelijkheid om buiten te genieten van een frisse bries.
Naast de woonruimte beschik je ook over een berging in de onderbouw, waardoor je voldoende opslagruimte hebt voor al je spullen. Dit appartement is ideaal voor starters die op zoek zijn naar een betaalbare en goed onderhouden woning met alle nodige voorzieningen in de directe omgeving.
         
     
    
            Bijzonderheden
        
- Woonoppervlakte 60,8m2
- Bouwjaar 1958
- Externe bergruimte
- Volledig geïsoleerd
- Energielabel A
- Gerenoveerd in 2019
- Actieve VvE
- 1/8e aandeel
- Maandelijkse VvE bijdrage €100,00
- Projectnotaris Rosenberg-Polak
- Oplevering in overleg, kan snel
- Niet-bewonersclausule van toepassing
- Ouderdomsclausule
Aan deze tekst kunnen geen rechten worden ontleend.