Beschrijving
        
Te koop ruim driekamerappartement die ligt in de boomrijke dertiger jaren buurt Laakkwartier. Het appartement bevindt zich op de tweede verdieping. Het appartement heeft een woning-breed balkon en is gelegen in een rustige straat. Dit appartement bevindt zich nabij Park den Burgh, diverse winkels, openbaar vervoersvoorzieningen, scholen en uitvalswegen. De woning dient intern te worden gemoderniseerd.
Het appartement is gelegen in de buurt Laakkwartier-west. De woning is goed bereikbaar met veel voorzieningen in de omgeving. Op loopafstand van een basisschool, de Haagse Hogeschool, station Hollands Spoor en de Mega Stores. Het centrum van Den Haag met alle winkels ligt op korte fietsafstand. Openbaar vervoer is letterlijk om de hoek: 3 tramlijnen en 1 buslijn, die rechtstreeks naar alle stations, het centrum en het strand van Scheveningen gaan. Er zijn verschillende sportfaciliteiten aanwezig in de nabije omgeving. Daarnaast is de buurt met haar diverse speelplaatsen kindvriendelijk. Uniek wonen in Den Haag!
         
     
    
            Indeling
        
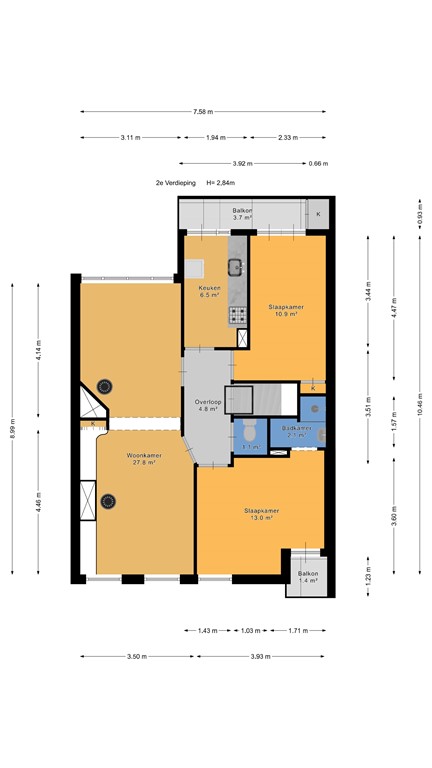
Voor de exacte maatvoering verwijzen wij u naar de plattegrond.
         
     
    
            Bijzonderheden
        
- Gelegen op eigen grond
- Woonoppervlakte 76 m²
- Bouwjaar 1939
- VVE in oprichting
- Verwarming middels gashaard
- Energielabel G
- Oplevering in overleg
- Onder voorbehoud van de splitsingsvergunning
- Niet-bewonersclausule en ouderdomsclausule van toepassing / asbestclausule van toepassing / as is, where is van toepassing
- Projectnotaris Quadrant Notarissen
- Oplevering in overleg, kan snel
Aan deze tekst kunnen geen rechten worden ontleend.