Beschrijving

Ruim en gezellig appartement op de top etage; deze 4 kamer woning met balkon is gelegen in een rustige straat in de buurt Rustenburg. Indeling: gesloten portiek, eigen entree; hal met apart toilet, lichte woonkamer aan de achterzijde van de woning, lichte slaapkamer tevens gelegen aan de achterzijde, keuken gelegen aan de achterzijde; deze is voorzien van diverse inbouwapparatuur zoals een gaskookplaat, oven, koelkast en RVS afzuigkap. Aan de voorkant van de woning bevinden zich tot slot nog twee slaapkamers en de badkamer met douche, wastafel en designradiator. Het balkon is gelegen aan de achterkant en kan worden bereikt via de keuken en de eerste slaapkamer. Energielabel C

Door de wijk heen vindt u diverse speeltuintjes waar de kinderen kunnen buitenspelen. De wijk kent een centrale ligging ten opzichte van diverse voorzieningen. Zo bent u binnen 15 minuten fietsen in het bruisende centrum van Den Haag en bevinden zich op loopafstand de winkels van de Dierenselaan en winkelcentrum Leyenburg. Tevens heeft de woning een gunstige ligging ten opzichte van groenvoorzieningen (het Zuiderpark ligt op fietsafstand), strand, openbaar vervoer en uitvalswegen.

Indeling

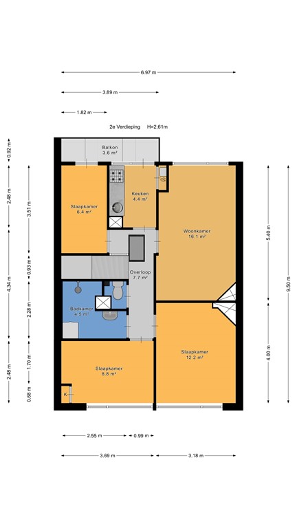
Voor de exacte maatvoering verwijzen wij u door naar de plattegrond.

Bijzonderheden

- Gelegen op erfpacht grond, eeuwigdurend uitgegeven.
- De AB 1986 herz. 1993 zijn van toepassing.
- De grondwaarde bedraagt € 15.973,00 en het huidig geldende canonpercentage is 0,9%.
- De canon bedraagt per halfjaar achteraf € 71,88, vermeerderd met € 16,50 beheerkosten.
- De eerstvolgende canonherziening vindt plaats op 1 januari 2026.
- Woonoppervlakte 67,3m²
- Energielabel C
- VvE in oprichting. VvE bijdrage nog niet bekend
- Onder voorbehoud van splitsing 
- Nieuwe HR ketel uit 2025 + nieuwe rookgasafvoer

- Projectnotaris Rosenberg-Polak
- Oplevering in overleg, kan snel
- Niet-bewonersclausule, asbestclausule, as is where is en ouderdomsclausule van toepassing.

Aan deze tekst kunnen geen rechten worden ontleend.

Kenmerken