Beschrijving

Sfeervol en gezellig 3-kamer appartement gelegen op de 1e etage met een energielabel B!

Dit sfeervolle appartement bevindt zich in het gezellige Laakkwartier. Laakkwartier is een groen en ruim opgezette wijk. Verspreid door de wijk vind je veel kleine buurtwinkels. In het winkelgebied Goeverneurlaan en de Megastore vindt je een breed aanbod aan (vers)speciaalzaken, supermarkten, een aantal mode- en luxewinkels en woon en design winkels. Met het openbaar vervoer of op de fiets bent u ook zo in de Haagse binnenstad, de Haagse markt, de Rijswijkse Herenstraat en het Winkelcentrum De Boogaard. In de buurt zijn diverse scholen en openbaar vervoer (tram, bus, treinstation Hollands Spoor en treinstation Moerwijk) Met de auto bent u doormiddel van diverse uitvalswegen zo op de snelweg. Het is in de wijk na 18:00 uur betaald parkeren. Parkeervergunning kan bij de gemeente worden aangevraagd.

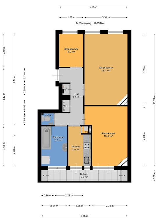
Indeling

Voor de exacte maatvoering verwijzen wij u naar de plattegrond.

Bijzonderheden

- Gelegen op erfpacht grond, eeuwigdurend uitgegeven.
- De grondwaarde is € 6.765,00 en huidig geldende canonpercentage is 4%. De canon bedraagt per halfjaar achteraf € 135,30 + € 16,50 beheerkosten. Eerst volgende canonherziening is 1-7-2028
- Woonoppervlakte 61,2m²
- Energielabel B
- Actieve VvE € 60,- per maand
- in 2018 gerenoveerd

- Projectnotaris Rosenberg-Polak
- Oplevering in overleg, kan snel
- Niet-bewonersclausule, asbestclausule, as is where is en ouderdomsclausule van toepassing.

Aan deze tekst kunnen geen rechten worden ontleend.

Kenmerken