Beschrijving

Goed onderhouden 3-kamer appartement (57 m2) gelegen op de topetage met balkon en energielabel B aan de Pasteurstraat 124 in het sfeervolle Laakkwartier in Den Haag. 

Ideaal gesitueerd, op korte afstand van het gezellige centrum van Oud Rijswijk, parken, station Hollands Spoor, de Haagse binnenstad en de hoofdwegen naar de diverse snelwegen.

Het appartement is volledig eigendom en maakt deel uit van een actieve VvE. De maandelijkse bijdrage bedraagt €94,92.

Indeling

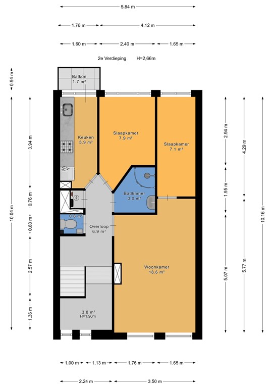
Voor de exacte maatvoering verwijzen wij u naar de plattegrond.

Bijzonderheden

- Volledig eigendom
- Woonoppervlakte 57m²
- Energielabel B
- Actieve VvE € 94,92,- per maand

- Projectnotaris Rosenberg-Polak
- Oplevering in overleg, kan snel
- Niet-bewonersclausule, asbestclausule, as is where is en ouderdomsclausule van toepassing.

Aan deze tekst kunnen geen rechten worden ontleend.

Kenmerken