Beschrijving

Ruim en lichte topetage appartement te koop met maar liefst 3 slaapkamers in Laak!

4-kamer appartement van circa 73m2. De woning beschikt over een eigen opgang, drie slaapkamers, apart toilet, badkamer met aparte douche, wastafel met spiegel en een designradiator. De keuken beschikt over diverse inbouwapparatuur. Vanuit een van de slaapkamers aan de achterkant van de woning is er toegang tot het balkon. De woning heeft een energielabel C, geldig tot februari 2026. Woning is gerenoveerd in 2015, in 2025 iets opgefrist. 

Laakkwartier is een groen en ruim opgezette wijk. Verspreid door de wijk vind je veel kleine buurtwinkels. In het winkelgebied Goeverneurlaan en de Megastore vind je een breed aanbod aan (vers)speciaalzaken, supermarkten, een aantal mode- en luxewinkels en woon en design winkels. Met het openbaar vervoer of op de fiets bent u ook zo in de Haagse binnenstad, de Haagse markt, de Rijswijkse Herenstraat en het Winkelcentrum De Boogaard. In de buurt zijn diverse scholen en openbaar vervoer (tram, bus, treinstation Hollands Spoor en treinstation Moerwijk) Met de auto bent u doormiddel van diverse uitvalswegen zo op de snelweg. Het is in de wijk na 18:00 uur betaald parkeren. Parkeervergunning kan bij de gemeente worden aangevraagd.

Indeling

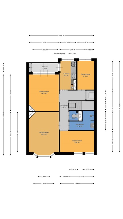
Zie voor de indeling en afmetingen graag de plattegrond.

Bijzonderheden

- Woonoppervlakte 73m2
- Bouwjaar 1923
- Energielabel C, geldig tot februari 2026
- Actieve VvE, bijdrage €120,- per maand. Reserve op 01-01-2024 bedroeg € 695,88. Totaal verenigingsreserve: € 4.610,74.
- Er zit een actieve aanschrijving (last onder dwangsom) op het pand via de VvE. De verkoper heeft een extra bijdrage (€2.000,-) voldaan voor het uitvoeren van de werkzaamheden.
- Renovatie is uit 2015, woning is recentelijk nog wat opgefrist met o.a. laminaat vervangen, sausen woning, nieuwe koelkast en oven.  
- 1/6e aandeel, VvE bestaat uit nummers 303-313, 6 appartementen
- Eigen grond

- Projectnotaris Quadrant Notarissen of Rosenberg Polak Den Haag
- Oplevering in overleg, kan snel
- Niet-bewonersclausule, asbestclausule, 'as is where is' clausule en ouderdomsclausule van toepassing.

* Aan deze tekst kunnen geen rechten worden ontleend.*

Kenmerken