Beschrijving

Gezellig en ruim 4-kamer appartement met balkon te koop op de tweede etage. De woning komt uit de verhuur en is in 2016 gerenoveerd. Beschikt over een label B. Eigen opgang naar de tweede etage. Aan de voorzijde van de woning ligt de eerste slaapkamer en woonkamer. Vanuit de hal toegang tot de badkamer, apart toilet en aan de achterkant van de woning bevindt zich nog de 2e en 3e slaapkamer met toegang tot het balkon. Badkamer beschikt over een wastafel en douche met bad. In de badkamer bevindt zich ook de aansluiting voor de wasmachine. 
De keuken is momenteel basic, maar wel met voorzien van diverse inbouwapparatuur.

Uniek wonen in Den Haag. Dat kan goed in deze buurt. Bennekomstraat is gelegen in de buurt Oostbroek-Noord. Dit is een kindvriendelijke buurt met relatief veel gezinnen. Gunstige ligging t.o.v. winkels (winkelstraat Apeldoornselaan/Dierenselaan op loopafstand maar ook winkelcentrum Leyenburg en Haagsche Markt), op fietsafstand van Stadscentrum en Scheveningen, openbaar vervoer en diverse scholen. Groen-, sport- en recreatievoorzieningen (Zuiderpark) alsmede zee, strand en duinen op enkele minuten fietsen bereikbaar.

Indeling

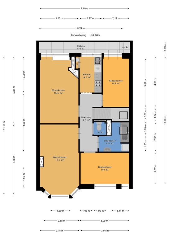
Voor de exacte maatvoering verwijzen wij u naar de plattegrond.

Bijzonderheden

- Woonoppervlakte 81m2
- Bouwjaar 1931
- Energielabel B, geldig tot 2027
- Actieve VvE, MJOP aanwezig 
- 1/3e aandeel, VvE bestaat uit 3 appartementen.
- Maandelijkse VvE bijdrage € 100,-. Reservefonds circa € 3.121,59,- in 2024. 
- Eigen grond

- Projectnotaris Rosenberg Polak
- Oplevering in overleg, kan snel
- Niet-bewonersclausule, asbestclausule, 'as is where is' en ouderdomsclausule van toepassing.

Kenmerken