Beschrijving

Dit lichte en verzorgde 3-kamer hoekappartement van ca. 49 m² biedt alles wat je zoekt: een zeer goeie indeling met 2 slaapkamers, 2 badkamers , een nette afwerking en een royaal terras op het westen.
De woning is gelegen op eigen grond.

OMGEVING
De Indische buurt in Amsterdam Oost is een van de hipste buurten van de stad, met prachtig gerenoveerde panden en enorm veel voorzieningen op loopafstand. Er hangt een relaxte sfeer in de buurt waar alle culturen zijn vertegenwoordigd. Gelegen aan de gezellige Javastraat met diverse (koffie-) boetiekjes, speciaalzaken, toko’s en restaurants zoals Bar Basquiat, Wilde Zwijnen, Badhuis, Le Smash, Le French Café en Gallizia. Studio K en de Dappermarkt zijn om de hoek (ca. 5 minuten lopen) en ook Brouwerij ’t IJ en Artis zijn binnen 15 minuten lopen te bereiken. Tevens zijn er verschillende scholen, kinderdagverblijven en speeltuinen in de directe omgeving. En kun je genieten van het Ooster- en Flevopark om de hoek.

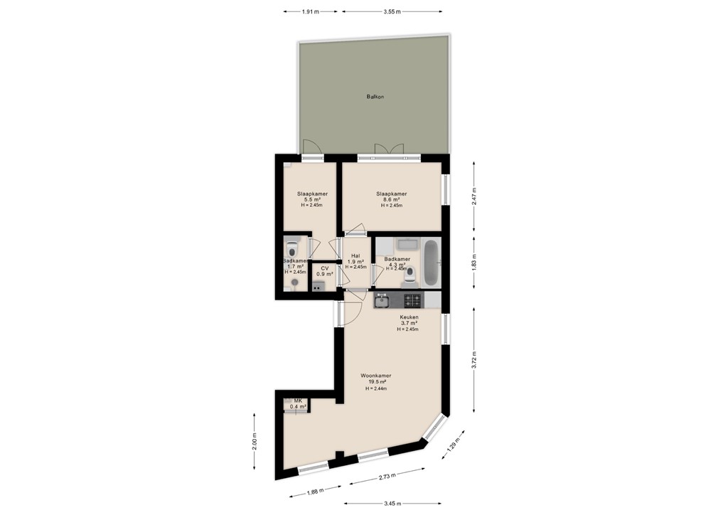
INDELING
Via het gemeenschappelijke trappenhuis bereik je het appartement op de eerste verdieping. Aan de voorzijde van de woning is de ruime en lichte woonkamer gelegen, met open keuken.Door de hoekligging met de Javastraat heb je veel licht Aan de achterzijde van de woning bevinden zich de twee slaapkamers, welke allebei toegang geven tot het terras. De tweede slaapkamer heeft een eigen badkamer met douche en een wastafel. In het midden van de woning bevindt zich de badkamer voorzien van een ligbad, wastafelmeubel, toilet en de wasmachine-aansluiting. Er is een separaat toilet en een ruime bergkast.

Al met al een TOP appartement in de gezellige Indische buurt!

VERENIGING VAN EIGENAREN (VVE)
De VVE Sumatrastraat 40 bestaat 9 leden en zal opgestart worden.


BIJZONDERHEDEN
- Gelegen in de geliefde Indische buurt
- Eigen grond, dus geen erfpacht
- Lichte en goed ingedeeld appartement
- Riant terras op het westen
- 2 slaapkamers
- badkamers
- Bouwjaar 1902
- Energielabel D
- Voorzien van dubbelglas
- VVE wordt opgericht
- Oplevering kan snel.

VOORBEHOUD
Deze informatie is met de nodige zorgvuldigheid samengesteld. Onzerzijds wordt geen aansprakelijkheid aanvaard voor enige onvolledigheid, onjuistheid of anderszins, dan wel de gevolgen daarvan. Alle opgegeven maten en oppervlakten zijn indicatief. Het meetrapport is conform Meetinstructie NEN 2580 opgesteld. Koper heeft zijn/haar eigen onderzoek plicht naar alle zaken die voor hem of haar van belang zijn. Met betrekking tot deze woning is de makelaar adviseur van verkoper. Van toepassing zijn de NVM-voorwaarden.

Kenmerken