Beschrijving

NIET VOOR STUDENTEN & NIET GESCHIKT VOOR MEER DAN TWEE WONINGDELERS! 

Recent geheel gerenoveerd 4 kamer appartement van ca 105M2 met grote tuin. Gelegen op de begane grond en souterrain etage,  voorzien van een ruime en speelse indeling in het Nieuwe Westen van Rotterdam. 

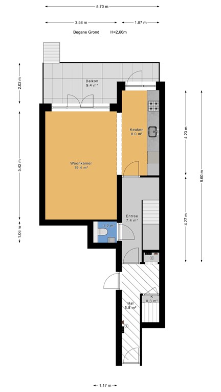
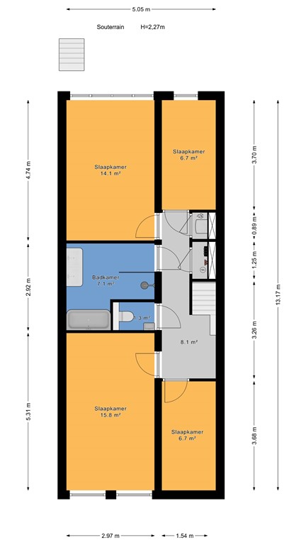
Het appartement is intern geheel gerenoveerd en opgeleverd in 2025. Gelegen op de Begane grond (halve etage achterzijde) en souterrain etage (geheel).

Indeling: 
Begane grond: Gezamenlijke entree welke is gedeeld met het naast gelegen appartement. Vanuit de gezamenlijke entree stapt u binnen in een ruime hal waar zich het toilet bevind en de trap naar het souterrain. Via een steellook glazendeur komt u binnen in de woonkamer met open keuken. De keuken is voorzien van alle denkbare apparatuur en tevens uitgerust met een Quooker. Vanuit de ruime woonkeuken heeft u toegang tot een deels overdekt balkon/terras, aan het terras gelegen treft een deel bestrate tuin. 

Souterrain etage: Het souterrain is voorzien van 3 slaapkamer met allemaal veel natuurlijk licht, er is een ruime berging met aansluiting voor wasmachine en droger. De grote badkamer is voorzien van een dubbele wastafel, modern bad en inloopdouche, tevens heeft het souterrain een tweede toilet. 

Bijzonderheden: 
- Energielabel A 
- Gerenoveerd en opgeleverd in 2025 
- 3 slaapkamer 
- Luxe afwerking 
- Volledig voorzien van vloerverwarming 
- Huurprijs €2.450,- per maand exclusief nuts voorzieningen 
- Waarborgsom gelijk aan twee maanden huur 
- Inkomenseis minimaal 2,5 de huur 
- Verhuur aan studenten is niet mogelijk

*Aan deze tekst kunnen geen rechten worden ontleend.

Kenmerken